Програмне забезпечення для планування Geberit ProPlanner Впевнено плануйте з Geberit
Програмне забезпечення для планування Geberit ProPlanner — це довершений інструмент від компанії Geberit.
ПЗ Geberit ProPlanner адаптоване до потреб проектних сантехніків і сантехнічних компаній, які самостійно займаються плануванням і розрахунками середніх і великих проектів.
Модуль планування охоплює всю сантехніку — від рішень для постачання питної води, каналізаційних і монтажних систем (Geberit Duofix / Geberit GIS) до вакуумних систем водовідведення з дахів (Geberit Pluvia).
Модуль планування
Монтажні системи
Швидке, просте й ефективне планування монтажних систем.
- Планування монтажних систем
- Асортимент виробів Geberit Duofix і Geberit GIS
- Планування в режимі швидкого введення
- Швидке, просте й ефективне планування монтажних систем
- Функція експорту в модуль детального тривимірного планування
- Інтерфейс експорту в систему CAD (Autodesk® RealDWG®)
- Інтегровані найновіші правила й вироби Geberit
- Обчислення згідно з нормами та правилами Geberit
- Автоматичне виведення списків матеріалів, деталей, пропозицій і шаблонів
- Автоматичне виведення горизонтальної та вертикальної проекцій і монтажних креслень

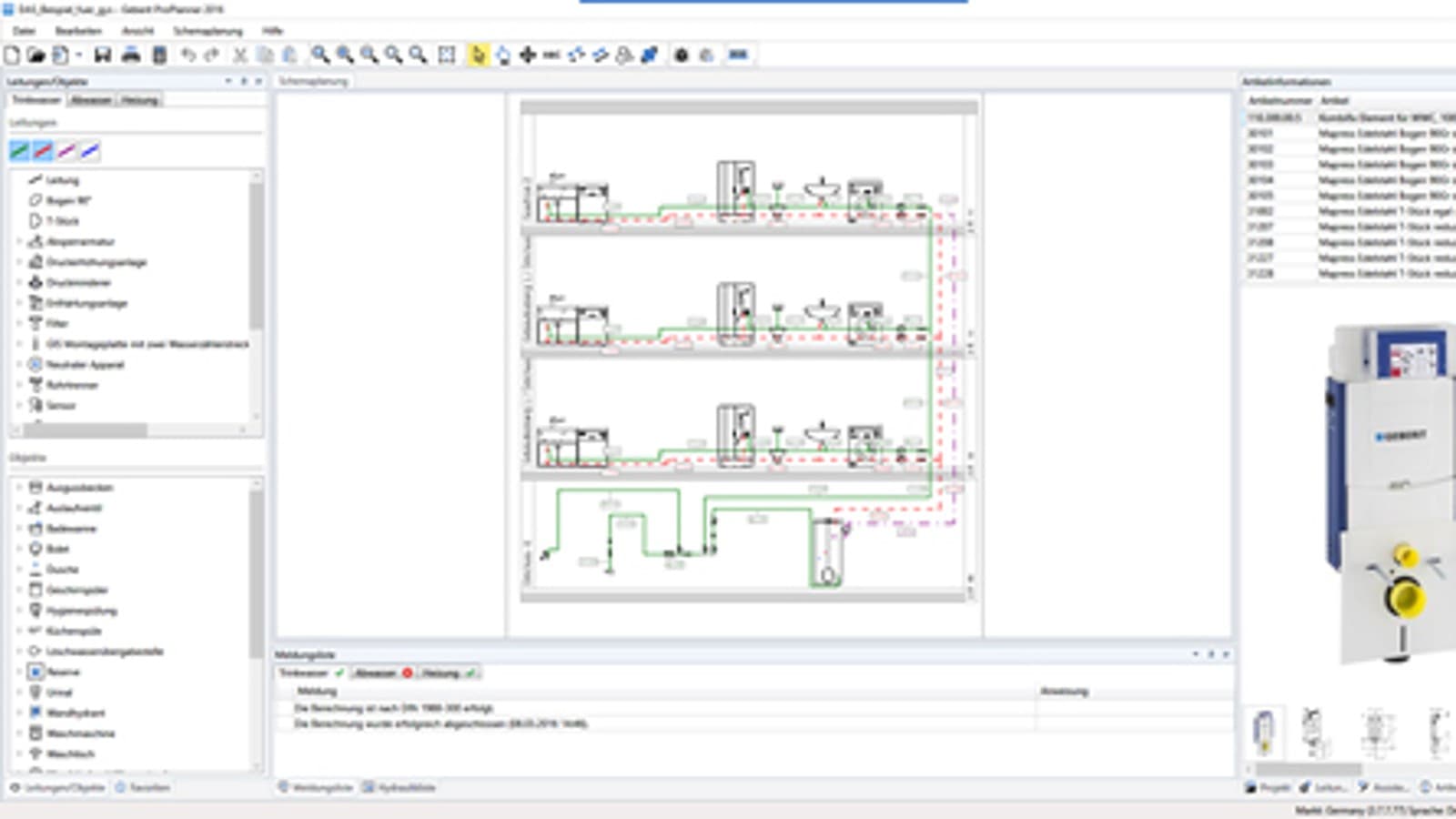
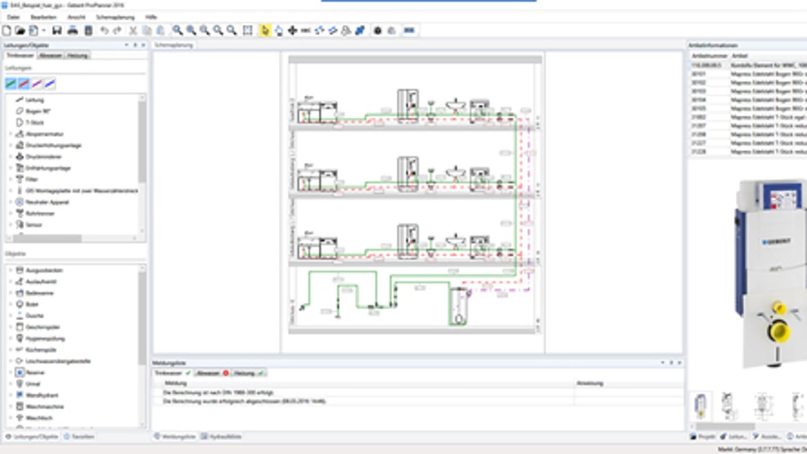
Схематичне планування
Графічно деталізоване планування трубопровідних систем.
- Планування рішень для постачання питної води та каналізаційних систем
- Асортимент охоплює такі вироби: Geberit Mepla, Geberit PushFit, Geberit Mapress із нержавіючої сталі, Geberit Mapress із міді, Geberit PE, Geberit Silent-PP, Geberit Silent-db20 і Geberit Silent-Pro
- Планування у формі схем
- Графічно деталізоване планування трубопровідних систем
- Інтерфейс експорту в систему CAD (Autodesk® RealDWG®)
- Інтегровані найновіші правила, норми й вироби Geberit
- Обчислення згідно з нормами країни
- Автоматичне виведення списків матеріалів, деталей, пропозицій і гідравлічних компонентів
- Автоматичне виведення схематичних креслень

Детальне тривимірне планування
Комплексне й детальне планування сантехнічного обладнання.
- Планування рішень для постачання питної води та каналізаційних і монтажних систем
- Асортимент охоплює такі вироби: Geberit Duofix, Geberit GIS, Geberit Mepla, Geberit PushFit, Geberit Mapress із нержавіючої сталі, Geberit Mapress із міді, Geberit PE, Geberit Silent-PP, Geberit Silent-db20 і Geberit Silent-Pro
- Створення горизонтальної, вертикальної та тривимірної проекцій
- Комплексне й детальне планування сантехнічного обладнання
- Імпорт і експорт у CAD-програми (Autodesk® RealDWG®)
- Безпосереднє планування на основі планів із CAD-програм
- Інтегровані найновіші правила, норми й вироби Geberit
- Обчислення згідно з нормами та правилами Geberit
- Автоматичне виведення списків матеріалів, деталей, пропозицій і шаблонів
- Автоматичне виведення горизонтальної, вертикальної та тривимірної проекцій і монтажних креслень

Системи водовідведення з дахів
Оптимальні гідравлічні й економічні характеристики та надійність планування.
- Планування вакуумних систем водовідведення з дахів Geberit Pluvia
- Асортимент охоплює вироби: Geberit PE, Geberit Silent-db20 і Geberit Pluvia
- Планування в ізометричній проекції
- Оптимальні гідравлічні й економічні характеристики та надійність планування
- Інтерфейс імпорту й експорту в CAD-програми (Autodesk® RealDWG®)
- Обчислення площі даху на планах із CAD-програм
- Інтегровані найновіші правила, норми й вироби Geberit
- Обчислення згідно з нормами країни або правилами Geberit
- Автоматичне виведення списків матеріалів, пропозицій і гідравлічних компонентів
- Автоматичне виведення ізометричних креслень

Попереднє виготовлення каналізаційних систем
Точне й детальне планування каналізаційних систем з урахуванням фасонних частин.
- Планування каналізаційних систем
- Асортимент охоплює вироби: Geberit PE та Geberit Silent-db20
- Створення горизонтальної, вертикальної та тривимірної проекцій
- Точне й детальне планування каналізаційних систем з урахуванням фасонних частин
- Інтерфейс імпорту й експорту в CAD-програми (Autodesk® RealDWG®)
- Безпосереднє планування на основі планів із CAD-програм
- Інтегровані найновіші правила й вироби Geberit
- Обчислення на основі швейцарських норм щодо каналізаційних систем
- Автоматичне виведення списків матеріалів, деталей, пропозицій і шаблонів
- Автоматичне виведення горизонтальної, вертикальної та тривимірної проекцій і монтажних креслень

Завантаження й ліцензування програмного забезпечення
Ліцензії на програмне забезпечення
Зареєструвавшись одноразово після встановлення ПЗ Geberit ProPlanner, ви отримаєте ліцензійний ключ для безкоштовного підключення модуля монтажних систем.
Модулі для схематичного планування трубопровідних систем, детального тривимірного планування, планування систем водовідведення з дахів і попереднього виготовлення каналізаційних систем платні. Після відвідування навчального курсу з користування програмним забезпеченням компанія Geberit безкоштовно надає всім учасникам навчального курсу програмне забезпечення для планування. За додатковою інформацією та ліцензіями звертайтеся до компанії Geberit або свого продавця-консультанта з продукції Geberit.
З корпоративною ліцензією кількість установлень і активацій Geberit ProPlanner у межах підприємства необмежена. Для використання в освітніх цілях або в освітніх закладах програмне забезпечення надається безкоштовно.
Завантаження програмного забезпечення
Завантажте найновішу версію програмного забезпечення для планування Geberit ProPlanner.
Вимоги до системи
Перш ніж завантажувати програмне забезпечення для планування, ознайомтеся з обов’язковими вимогами до системи.
| Мінімальна вимога | Рекомендована вимога | |
|---|---|---|
| Операційна система | 64-бітна десктопна версія Windows, що підтримується Microsoft | Найновіша 64-бітна десктопна версія Windows, що підтримується Microsoft |
| Процесор | 1 GHz | 2.5 GHz |
| Оперативна пам’ять | 4 ГБ | 16 ГБ |
| Жорсткий диск | 4 ГБ вільного місця | 6 ГБ вільного місця |
| Графічний адаптер | Інтегрована відеокарта | Дискретна відеокарта |
| Дисплей | З роздільною здатністю 1280 пікселів за горизонталлю та 1024 пікселів за вертикаллю | З роздільною здатністю 1920 пікселів за горизонталлю та 1080 пікселів за вертикаллю |
| Рекомендовано 96 точок на дюйм (розмір відображення) | ||
| Інтернет-служби | Потрібен доступ до Інтернету Чинна адреса електронної пошти |
Завантажити Geberit ProPlanner: